MyPad
MyPad
About
GALLERY
Photo Gallery
RENDERS
PLANS
MyPad Base Plan
+ Covered Outdoor Living
+ Sleepout 1
+ Sleepout 2
+ Third Bedroom
+ Boatshed
INCLUSIONS
TESTIMONIALS
Contact
MyPad
/
About
/
GALLERY
/
Photo Gallery
RENDERS
PLANS
/
MyPad Base Plan
+ Covered Outdoor Living
+ Sleepout 1
+ Sleepout 2
+ Third Bedroom
+ Boatshed
INCLUSIONS
/
TESTIMONIALS
/
Contact
/
Artfully Simple.
+ Covered Outdoor Living
MyPad
/
About
/
GALLERY
/
Photo Gallery
RENDERS
PLANS
/
MyPad Base Plan
+ Covered Outdoor Living
+ Sleepout 1
+ Sleepout 2
+ Third Bedroom
+ Boatshed
INCLUSIONS
/
TESTIMONIALS
/
Contact
/
PLANS
MyPad Base Plan
+ Covered Outdoor Living
+ Sleepout 1
+ Sleepout 2
+ Third Bedroom
+ Boatshed
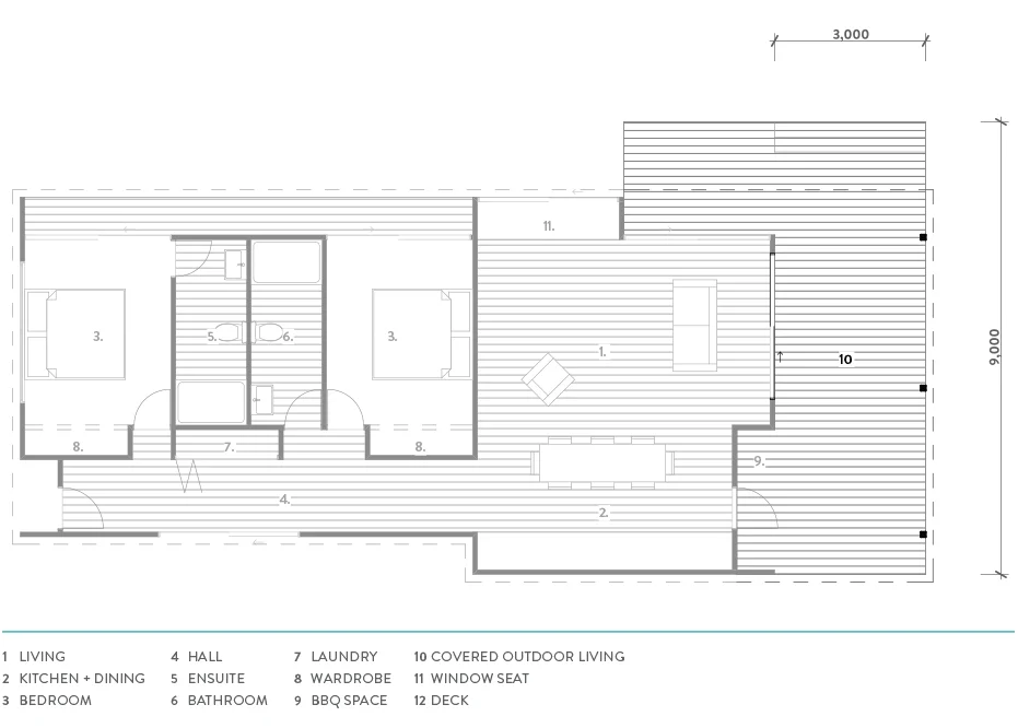
MyPad + Covered Outdoor Living
+ $40,000
*
This is our classic footprint, room sizes can be adjusted to suit your needs.